Gemini is a high-performance sliding system designed for villas, apartments, and hotels, offering exceptional durability, smooth operation, and support for large, wider openings.

Available in insulated and non-insulated variants, Gemini combines architectural elegance with engineering precision for modern, premium spaces.

Customisable with heavy-duty sashes, lift-and-slide hardware compatibility, and a specialised Procural drainage system with no visible frame weep holes, Gemini delivers outstanding performance and refined aesthetics.
  • High-performance insulated / non-insulated sliding system available in 2-track and 3-track configurations for wider openings.
  • Wider track with special Procural Drainage System — no visible drain holes on the frame.
  • Heavy-duty sash compatible with standard rollers and lift-and-slide hardware for smooth operation.
  • Special side-jamb profile with concealed anchors for a clean visual finish.
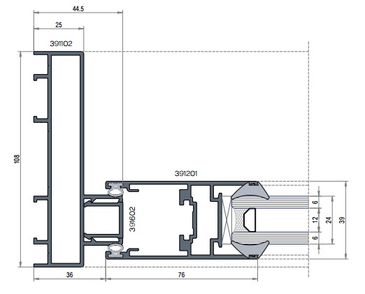
  • 2-Track frame depth: 108 mm
  • 3-Track frame depth: 169 mm
  • Interlocks: 41 mm for doors
  • Max sash size: 1500 mm (W) × 3500 mm (H)
  • Min sash size: 1000 mm (W) × 2000 mm (H)
  • Max sash weight:
  •  • Standard Sliding – up to 200 kg
  •  • Lift & Slide – up to 300 kg
  • Glass thickness: 12 mm to 32 mm
  • Air tightness: up to Class A3
  • Water tightness: 1050 Pa (2.1 × 2.3 m door – E1050 as per EN12208)
  • Wind resistance: up to DL3000

Similar More Products

Procural SL680

An uninsulated system designed for the construction of sliding doors, windows and glazed elements …

Procural SL680

An uninsulated system designed for the construction of sliding doors, windows and glazed elements …

Procural SL680

An uninsulated system designed for the construction of sliding doors, windows and glazed elements …

Procural SL680

An uninsulated system designed for the construction of sliding doors, windows and glazed elements …